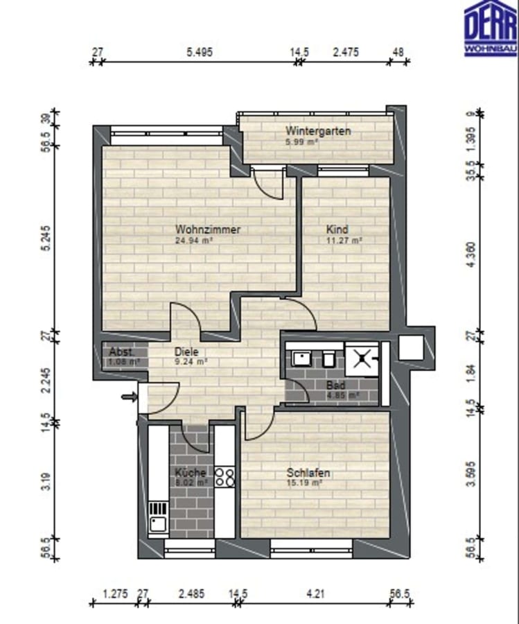
Diese helle 3-Zimmer-Wohnung im Erdgeschoss eines Mehrfamilienhauses befindet sich in zentraler Lage in Kalkar. Mit einer Wohnfläche von 78 m² bietet sie ein komfortables Wohnen auf einer Ebene. Ein Wintergarten lädt zum Verweilen ein und erweitert den Wohnbereich ins Freie. Die Wohnung ist nicht für Wohngemeinschaften geeignet. Hunde sind nicht gestattet. Die Wohnung wurde im Zeitraum 2025/2026 umfassend modernisiert und befindet sich in einem entsprechend guten, zeitgemäßen Zustand. Das Badezimmer wurde neu hergestellt und ist mit einer bodengleichen Dusche, WC und Waschtisch ausgestattet. Ein Waschmaschinenanschluss ist im Bad vorhanden. Im Zuge der Modernisierung wurden die Elektroinstallation sowie Fenster und Türen erneuert. Die Beheizung erfolgt über eine neu installierte Wärmepumpenanlage. Darüber hinaus wurden Dach und Fassade energetisch ertüchtigt (Dämmmaßnahmen); die Fassade wurde abschließend neu beschichtet. Die Übergabe der Wohnung erfolgt unrenoviert. Die Wandflächen sind tapezierfähig gespachtelt ausgeführt; die Küche und Diele sind weiß gefliest und die Wohn- und Schlafräume mit Laminat ausgestattet. Ein aktuell gültiger Wohnberechtigungsschein muss vorhanden sein! Die Wohnung liegt in einer ruhigen und familienfreundlichen Wohngegend im Stadtteil Kalkar. Sie sehen gerade einen Platzhalterinhalt von Google Maps. Um auf den eigentlichen Inhalt zuzugreifen, klicken Sie auf die Schaltfläche unten. Bitte beachten Sie, dass dabei Daten an Drittanbieter weitergegeben werden.Familienfreundliche 3-Zimmer-Wohnung (mit WBS) zu vermieten
47546 Kalkar, Erdgeschosswohnung zur Miete
Kontaktdaten
40721 HildenObjektdaten
47546 KalkarAusstattung / Merkmale
Energieausweis
Objektbeschreibung
Beschreibung
Die Verfügbarkeit beginnt am 01.05.2026. Ein gültiger Wohnberechtigungsschein ist Voraussetzung.Ausstattung
Sonstiges
Kontakt bitte ausschließlich über E-Mail.Lage
•Zentrale Lage mit guter Anbindung an den öffentlichen Nahverkehr
•Kurze Wege zu Bushaltestellen sowie regionalen Verkehrsverbindungen
•Einkaufsmöglichkeiten, Apotheken und Banken befinden sich in unmittelbarer Nähe
•Schulen und Kindergärten sind gut erreichbar
•Zahlreiche Grünflächen und Erholungsmöglichkeiten in der Umgebung
•Gute medizinische Versorgung durch nahegelegene Arztpraxen
•Schnelle Anbindung an Hauptverkehrsstraßen und umliegende Ortschaften
Unsere Standorte →
2.700 Wohneinheiten an 15 Standorten in verschiedenen Regionen.
Musterwohnungen →
Entdecken Sie unsere Musterwohnungen an 6 Standorten.
Vormerken lassen →
Wir melden uns, wenn wir etwas passendes für Sie finden.