1. Immobilie
  2. Familienfreundliche 4-Zimmer-Wohnung (mit WBS) zu vermieten

Familienfreundliche 4-Zimmer-Wohnung (mit WBS) zu vermieten

47546 Kalkar, Erdgeschosswohnung zur Miete

Kontaktdaten

Objektdaten

  • Objekt-ID
    89/2/9
  • Objekttypen
    Erdgeschosswohnung, Wohnung
  • Adresse
    Postweg 4
    47546 Kalkar
  • Etagen im Haus
    3
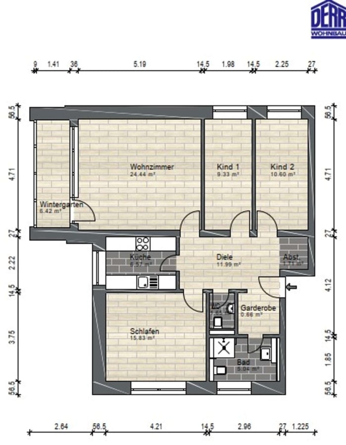
  • Wohnfläche ca.
    91 m²
  • Zimmer
    4
  • Schlafzimmer
    3
  • Badezimmer
    1
  • Baujahr
    1974
  • Letzte Modernisierung
    2026
  • Zustand
    modernisiert
  • Ausstattung
    Standard
  • Haustiere
    nicht erlaubt
  • Verfügbar ab
    01.05.2026
  • Kaltmiete
    624,40 EUR
  • Nebenkosten
    230,00 EUR
  • Heizkosten
    180,00 EUR (nicht in den Nebenkosten enthalten)
  • Warmmiete
    1.034,40 EUR

Ausstattung / Merkmale

  • ✓ Balkon/Terrasse
  • ✓ Gäste-WC
  • ✓ Keller
  • ✓ Wohnberechtigungsschein erforderlich

Objekt­beschreibung

Beschreibung

Diese helle 4-Zimmer-Wohnung im Erdgeschoss eines Mehrfamilienhauses befindet sich in zentraler Lage in Kalkar. Mit einer Wohnfläche von 91 m² bietet sie ein komfortables Wohnen auf einer Ebene. Ein Wintergarten lädt zum Verweilen ein und erweitert den Wohnbereich ins Freie. Zusätzlich gibt es ein Gäste-WC. Die Wohnung ist nicht für Wohngemeinschaften geeignet. Hunde sind nicht gestattet.
Die Verfügbarkeit beginnt am 01.05.2026. Ein gültiger Wohnberechtigungsschein ist Voraussetzung.

Ausstattung

Die Wohnung wurde im Zeitraum 2025/2026 umfassend modernisiert und befindet sich in einem entsprechend guten, zeitgemäßen Zustand.

Das Badezimmer wurde neu hergestellt und ist mit einer bodengleichen Dusche, WC und Waschtisch ausgestattet. Ein Waschmaschinenanschluss ist im Bad vorhanden. Zusätzlich steht ein separates Gäste-WC zur Verfügung.

Im Zuge der Modernisierung wurden die Elektroinstallation sowie Fenster und Türen erneuert. Die Beheizung erfolgt über eine neu installierte Wärmepumpenanlage.

Darüber hinaus wurden Dach und Fassade energetisch ertüchtigt (Dämmmaßnahmen); die Fassade wurde abschließend neu beschichtet.

Die Übergabe der Wohnung erfolgt unrenoviert. Die Wandflächen sind tapezierfähig gespachtelt ausgeführt; ein Bodenbelag ist nicht vorhanden und vom Mieter einzubringen.

Sonstiges

Ein aktuell gültiger Wohnberechtigungsschein muss vorhanden sein!
Kontakt bitte ausschließlich über E-Mail.

Lage

Die Wohnung liegt in einer ruhigen und familienfreundlichen Wohngegend im Stadtteil Kalkar.
•Zentrale Lage mit guter Anbindung an den öffentlichen Nahverkehr
•Kurze Wege zu Bushaltestellen sowie regionalen Verkehrsverbindungen
•Einkaufsmöglichkeiten, Apotheken und Banken befinden sich in unmittelbarer Nähe
•Schulen und Kindergärten sind gut erreichbar
•Zahlreiche Grünflächen und Erholungsmöglichkeiten in der Umgebung
•Gute medizinische Versorgung durch nahegelegene Arztpraxen
•Schnelle Anbindung an Hauptverkehrsstraßen und umliegende Ortschaften

Sie sehen gerade einen Platzhalterinhalt von Google Maps. Um auf den eigentlichen Inhalt zuzugreifen, klicken Sie auf die Schaltfläche unten. Bitte beachten Sie, dass dabei Daten an Drittanbieter weitergegeben werden.

Mehr Informationen

Direktanfrage

Wir verwenden Ihre Angaben zur Beantwortung Ihrer Anfrage. Weitere Informationen finden Sie in unseren Datenschutzhinweisen.

* Pflichtangaben
 SSL-verschlüsselt
Darstellung der Immobilien mit WP-ImmoMakler und Daten aus

Unsere Standorte →

2.700 Wohneinheiten an 15 Standorten in verschiedenen Regionen.

Musterwohnungen →

Entdecken Sie unsere Musterwohnungen an 6 Standorten.

Vormerken lassen →

Wir melden uns, wenn wir etwas passendes für Sie finden.